栏目列表
新闻资讯
- 7大环节全解析 | 添元消波块钢模:从需求到售后,匠心守护每一米海岸线
- 发货:35吨A型、5吨A型 扭王字块钢模
- 发货:扭王字块钢模 40吨A型、15吨A型
- 元旦快乐!
- 找钢模小程序正式上线公告
- 扭王字块Ⅱ型介绍
- 找钢模(二手消波块钢模交易平台)入口
- 原”宁波添元建筑工程有限公司“改名
联系我们
咨询电话: 180-6739-5218(宁波添元)
消波块事业部: 189-5783-0019(王经理 )
联锁块事业部: 133-5574-4599(张经理)
座机: 0574-86988331
地址: 浙江省宁波市海曙区南站东路16号 月湖银座16楼
常见问题
扭王字块预制方案
一、工程特点分析:
本工程中扭王字块预制工程工期紧、数量多。因此如何在明年3月份天气还没有回暖的条件下就要大强度地预制成为了控制工期的重点。
二、工程施工方法:
预制厂建设------模板整修------扭王字块预制------养护------扭王字块出池
2.1、预制厂建设:
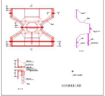
本工程扭王字块预制场地位于 8#池西北侧规划区域内,拟建搅拌站旁边共分三道底胎模,底胎尺寸均为 6m×100m,按照 2m×2m 为一块扭王字块预制位置的话,可容纳 450块。具体布置见下图

2.2 模板整修
根据工期计算,四个月要预制14500块扭王字块,按照每个月25天有效日计算,即日强度为140块。由于拆模时间限制,因此需要2套模板即280套。目前我项目部共计剩余扭王字块模板368套,可以满足要求。在预制厂区域建成并具备条件时,可提前将所有模板拉至现场,将浮锈清除并将连接件补焊牢固,边角修理齐整,最后刷好模板油。
2.3 扭王字块预制
本工程扭王字块混凝土标号为:C30F250。混凝土由旁边的在建搅拌站拌制。从搅拌站到预制场地距离为20m。
2.3.1 整体流程:
如上图所示,按照每天完成140块计算,则每天应利用3座中的1座底胎,三天一个轮次进行浇筑施工。出池强度应为70%左右。按照以往同类工程经验,在3月份~4月份之间温度更低时扭王字块拆模时间为24小时,出池时间为48小时,同时随着温度升高,拆模出池时间可渐渐缩短。具体时间可根据试块强度确定。
①天工作:1#底胎区模板安装、打混凝土;2#底胎模板安装
②第二天工作:2#底胎区混凝土浇筑;1#底胎区模板拆除并移至3#底胎区安装。
③第三天工作:3#底胎区混凝土浇筑;1#底胎区扭王字块出池,暂存在存块区;2#底胎区模板拆除并移至1#底胎区安装
2.3.2 模板安装及运输:

扭王字块模板设计型式为立式,底面放在台座上,上口下灰。每套板由对称的两片组成。模板安装使用16吨吊车辅助,为防止漏浆,板底面与底胎接触面贴橡胶条止浆,两片模板间贴橡胶条止浆,然后紧固模板连接螺栓。
每次模板重新使用前都必须清理、刷油。同时模板与底胎之间应使用棉纸作为脱模层。
相邻底胎区间模板运输使用16吨吊车即可,即将相邻底胎区已经浇筑完成的扭王字块模板拆除后直接用吊车甩到欲安装模板的底胎区上。而如果从1#(或 3#)底胎区运至3#(或1#)底胎区则需要吊车与一辆板车运输。
2.3.3 混凝土运输:
由于本工程混凝土坍落度很小,仅为3~4cm左右,因此无法用罐车运输,而是采用拖拉机装料斗运输混凝土。每个料斗容量均为13方左右,可以满足一块扭王字块的混凝土浇筑。
本工程计划进场6台拖拉机,每台拖拉机配一个料斗。拖拉机行驶通道见预制厂平面图,要求平整无坑陷,以防安全事故的发生。
2.3.4 混凝土浇筑:
混凝土采用两台16吨吊车起吊料斗浇筑,人员分两组。按照一块扭王字块浇筑需10分钟计算,完成140块需要12小时。使用50插入式振捣棒振捣。在振捣时应注意30cm一层分层振捣,振捣棒应避免碰撞模板,与侧模保持5cm~10cm的距离,插点要均匀,可按行列式或交错式进行,移动间距不超过作用半径的 1.5 倍,一般为40~50cm;每一处振捣棒插入下层混凝土5~10cm,使两层混凝土结合成一体。混凝土捣固时间控制在30~40秒,一般以混凝土不再下沉,表面开始泛浆,不出现气泡为度。尤其注意在混凝土浇筑至中间两分支处时要暂停落灰,仔细将斜面振捣后再继续落灰,防止斜面气泡的产生。
浇筑至顶面时要注意二次振捣,将顶面浮浆密实。在浇筑完成后,扭王字块的上表面要求二次压光;
2.3.5 拆模、养护
拆模时间根据强度决定,春季一般为温度低时24小时,温度高时12小时。温度低时养护采用棉被覆盖法;温度高时养护采用塑料薄膜包裹并洒水润湿的方法。
三、工程总结
通过上述施工方案的落实,本工程在预期工期内顺利完成。事实证明,提前备好两倍日强度量的模板这一决定具有前瞻性,在气温低于5度之后,扭王字块成品往往需要2天甚至更长的时间才能脱模。一开始就投入280套模板使得前期产量一定程度上弥补了后期产量的不足,最终在预期工期内,完成所需产量。
- 上一个:混凝土强度偏低的主要原因
- 下一个:联锁块技术交底完整
新闻资讯
-
2025-01-25 19:19:54
选择消波块钢模的几点建议
-
2023-10-09 13:56:09
水泥选购常识
-
2023-10-09 13:51:04
扭王字块、四脚空心块安装
-
2023-10-08 17:31:38
联锁块铺装施工方案
-
2023-10-08 17:25:55
联锁块的四个层次是什么意思?
-
2023-10-08 17:16:59
联锁块的计量和比例控制
